Концепция
Wellness-пространство создано для телесных, духовных и ритуальных практик: йоги, звуковых мастер-классов, чайных церемоний и лекций. Задача пространства — не одноразовое впечатление, а внутренняя трансформация, благодаря которой человек стремится возвращаться снова и снова.
Так как практики принадлежат разным культурным традициям, интерьер строится на принципе нейтральности и универсальности. В качестве образного языка была выбрана римская архитектура.
коллажи с мудбордом и референсами
Чертежи
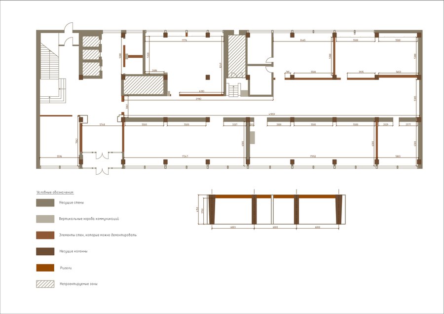
исходный план / зонирование / планировка
Визуализации
Original size 2480x1750
входная зона
Original size 2480x1750
лекторий
Original size 2480x1750
комната физической терапии
Original size 2500x1750
комната звуковой терапии
Original size 2500x1750
чайная
Original size 2480x1750
чайная








