
Цель: создание учебного кластера на основе синтеза философии Инь-Ян и психологии цвета. Эффективная учеба и работа — это не монотонное состояние, а поток, где фазы активного поглощения знаний (Ян) должны сменяться фазами спокойного осмысления и отдыха (Инь). Пространство, где каждый элемент подчинен принципу баланса. И чтобы добиться максимальной продуктивности во время обучения в каждой зоне будут определенные цветовые акценты, исходя из психологии цвета в интерьере.
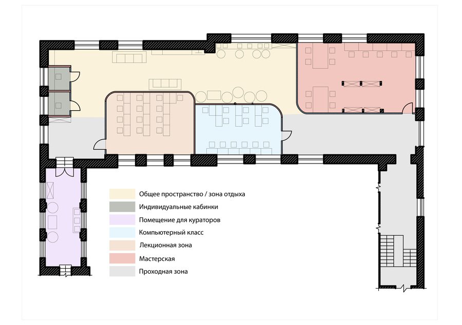
зонирование



КОМПЬЮТЕРНЫЙ КЛАСС. Цветовая гамма: · Основной: Серо-голубой. Этот цвет снижает напряжение глаз от мониторов, способствуют спокойной и сосредоточенной работе. Элементы Инь-Ян: · Форма и материал: Ножки столов с жесткими, прямыми линиями (Ян), но столешницы — мягкие и с плавными формами (Инь).
МАСТЕРСКАЯ. Цветовая гамма: · Белые стеллажи — чистота, открытость. Красный — это мощный импульс, он повышает энергию и физическую активность, что важно в мастерской. Будет включать в себя: · Небольшая техническая зона, где присутствует необходимая оргтехника · Стеллажи с нужными инструментами, место для хранения · Два средних стола на 4 человека и отдельные рабочие места Также стеклянные перегородки для ощущения более открытого и свободного пространства


ОБЩЕЕ ПРОСТРАНСТВО / ЗОНА ОТДЫХА. · Цветовая гамма: Теплые оттенки, бежевый, карамельные тона, светло-зеленый. В совокупности это создает ощущение комфорта и уюта, способсвует расслаблению. Зеленый — цвет баланса и гармонии. Он идеально подходит для зоны отдыха, так как снимает стресс и усталость. · Социальные зоны: Высокие столы для быстрого кофе и низкие мягкие кресла-мешки для отдыха, также уютные столики возле окна с кофепоинтом. · Плавные, обтекаемые формы мебели.
ИНДИВИДУАЛЬНЫЕ КАБИНКИ. Цветовая гамма: · Основной: Зеленый (например, цвет хвои) или нежно-зеленый. Это будет способствовать глубокой концентрации, интроверсии, подавляют излишнюю нервную активность и стимулируют интеллектуальную деятельность. Человек в кабинке будет «изолироваться» от всех, поэтому зеленый сможет гармонизировать состояние и атмосферу


ЛЕКЦИОННАЯ. Цветовая гамма: Оранжевый стимулирует умственную деятельность, способствует коммуникации и создает ощущение тепла и энтузиазма.