
Студенческий коворкинг — это специально оборудованное пространство в университете, где студенты могут учиться, работать над проектами или общаться. Такое пространство может помочь студентам раскрывать свои способности, создавать проекты в области креативных индустрий и инноваций, пробовать себя в запуске стартапов и реализовывать творческие идеи.

Референсы
Основная идея в том, чтобы создать пространство в университете для работы, нетворкинга и самостоятельного развития студентов. Также пространство должно быть «гибким» и могло подстраиваться под разные задачи студентов: учеба, работа, мероприятия, игры и т. д.

Мудборд проекта
Текстурная доска
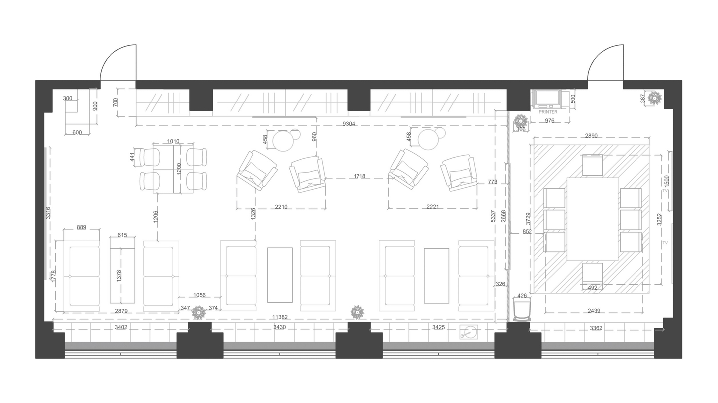
В пространстве предусмотрены столы для индивидуальной и групповой работы, отдельные зоны для отдыха и общения.
Трансформируемая часть пространства
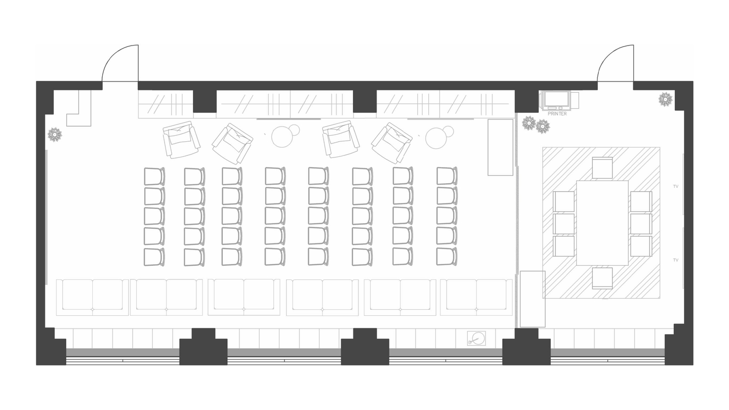
Также в коворкинге есть трансформируемые зоны. Таким образом есть два варианта рассадки студентов. Первый вариант расстановки мебели позволяет разместить до 32 различных по удобству сидячих мест. Второй вариант — театральная рассадка для проведения лекций и других мероприятий — может разместить до 65 человек.
Трансформируемая часть пространства
За основу была взята существующая аудитория в Вышке. Я намеренно отказалась от зоны кофе-поинта, так как в универсете есть отдельные зоны на других этажах, где студенты могут перекусить.
Переговорная комната для работы
Зонирование пространства. Зеленая и голубая зоны трансформируются