
Ресторан «URAL»
Интерьер ресторана выполнен в темных тонах с яркими акцентами. Приглушенный свет делает пространство уютнее. Концепт ресторана — сочетание атмосферы сказочности и таинственности. В ресторане можно заказать уникальные блюда, приготовленные по старинным рецептам в новом прочтении, а так же авторские вариации. Ресторан «URAL» — пространство, которое позволяет отвлечься от реальности и погрузиться в волшебный мир, наслаждаясь оригинальными блюдами и напитками.

Мудборд. За основу своей концепции я взяла сказ П.Бажова «Хозяйка Медной горы», где реальность соседствует с мифическим фольклором.

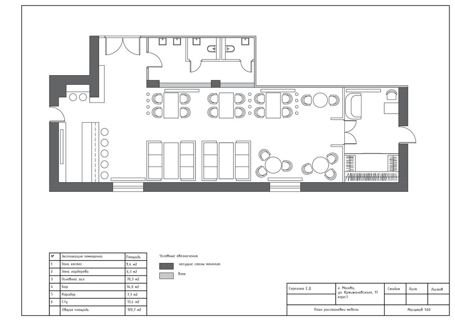
Входная группа с гардеробом. Волшебная дверь, состаренное зеркало, приглушенный свет, все это с самого начала погружает в атмосферу таинственности.
Основной зал, зона с камином. Камин создает ощущение уюта и спокойствия, напоминая нам о нашей связи с миром природы. На стене инсталляция, отсылающая нас к одной из скал-останцев в Уральских горах.
Основной зал с барной стойкой. Подвесные светильники создают комфортный приглушенный свет в зале, а барная стойка делает яркий акцент в интерьере.
Основной зал. Напольные светильники в зале напоминают лунный свет, пробирающийся сквозь дремучий лес.