
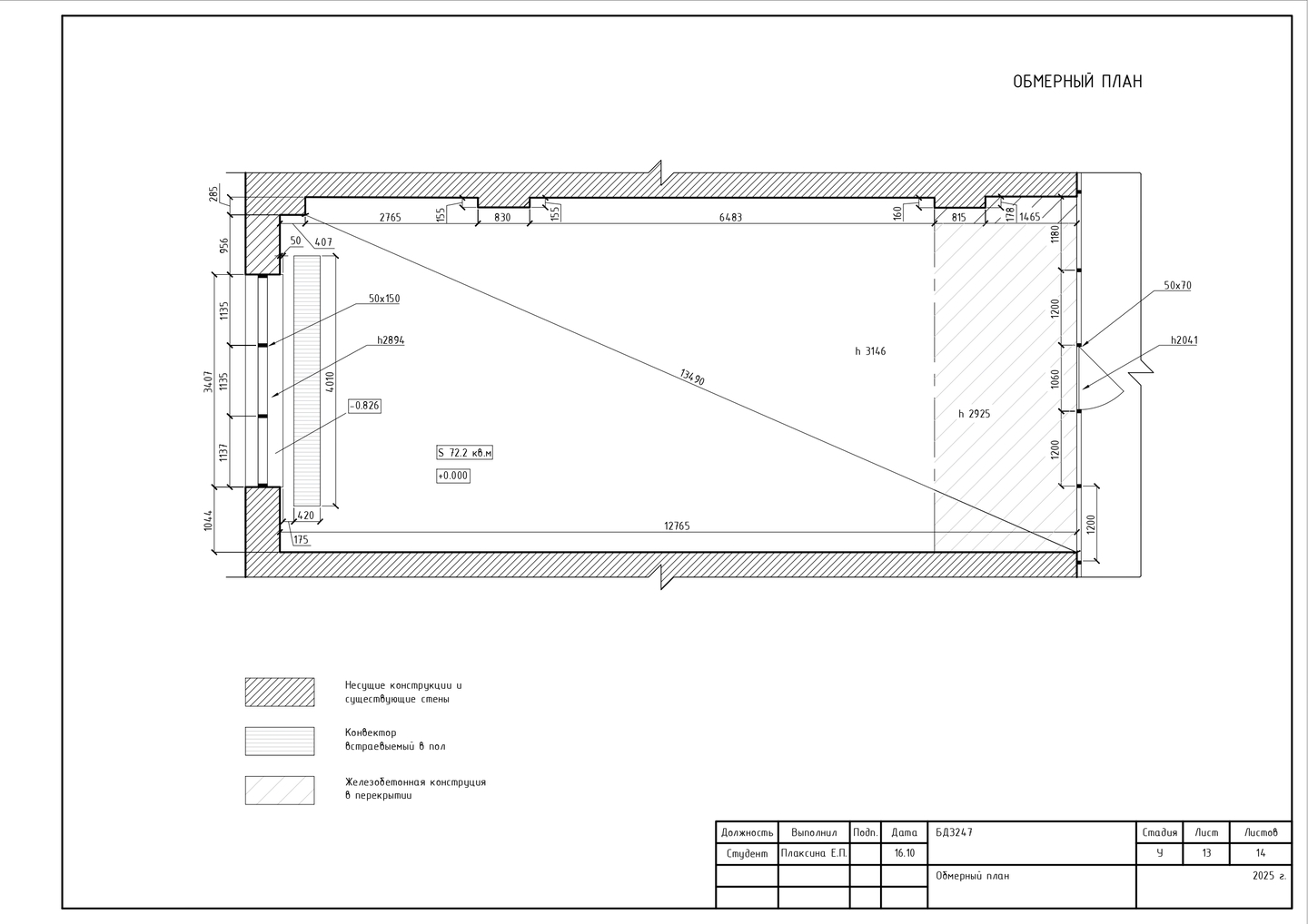
Освоение черчения посредством программы AutoCad. Изучаем возможности создания различных объектов, оформление чертежей. Одна из основных задач — ознакомление с принципами проекционного черчения. В рамках модуля проводилась обмерная практика на реальном помещении, для изучения навыка работы с пространством. Отдельно изучили выполнение геометрических фигур, сопряжения и другие элементы.
I. Изучение особенностей построения геометрических фигур и сопряжений
Упражнения на создание узоров, а также упражнение на виды сопряжений.
II. Построение объектов на основе сопряжений
Построение архитектурных обломов, декоративных ваз.
III. Построение фигур
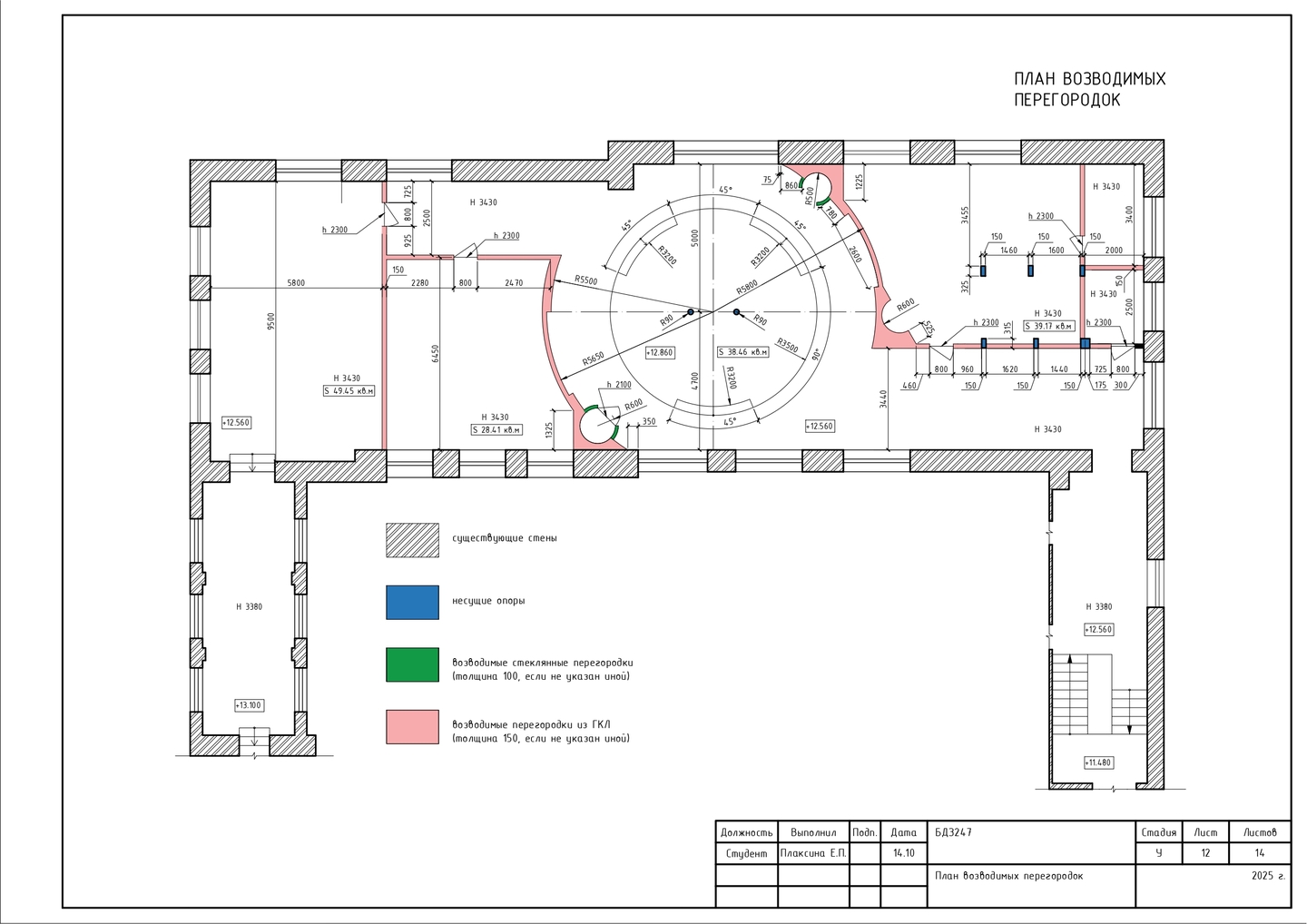
IV. Обмерная практика и применение полученных навыков для реализации плана возводимых перегородок
План возводимых перегородок, план помещения в корпусе Канатного цеха, план коммуникаций этого помещения