
В рамках 1 учебного модуля нашей задачей было спроектировать новый учебный кластер дизайна среды и интерьера на Малой Пионерской.
Я хотела создать место, максимально настраивающее на учебу и работу, но не лишенное комфорта и красоты.
Добавлю, что мой кластер также оснащен звукоизоляционным потолком и акустическими панелями.
- По результатам опроса был сделан вывод, что настоящее оформление Школы дизайна и кластера среды устраивает студентов. На основе этого вывода для проекта нового учебного кластера главной цветовой гаммой является чб, также древесные оттенки;
- Цель проекта — создать улучшенную версию интерьеров ШД, место, настраивающее на учебу, а также учесть большую часть желаний студентов относительно зонирования, мебели и деталей;
Материалы:

Основные материалы — бетон, дерево, металл, стекло;
Материалы для мебели — кожа, текстиль, пластик, деревянные и металлические детали;
мудборд и референсы
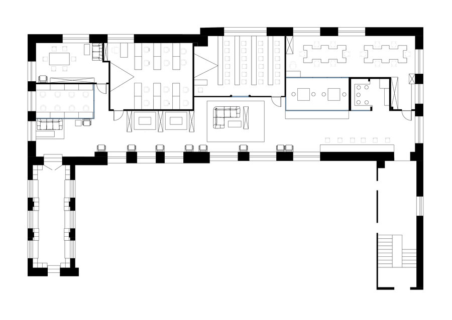
1 — тихая зона, 2 — громкая зона, 3 — макетная
План и зонирование
Входная группа / Зона хранения
50 шкафчиков для хранения


Общее пространство
Общее пространство делится на 2 основные части: - тихая зона - громкая зона
- вмещает в себя 20 одиночных сидячих мест + 2 дивана
Также к нему примыкает доп коворкинг и кофе-поинт.
детали
- мини-библиотека - одиночные места - акустические панели на стенах - звукоизоляционный потолок - стеклянные перегородки для визуального увеличения пространства
- наиболее широкое место в холле - доминанта холла — ниша с большим диваном и ковром
- платформа для макетов перед застекленной «грязной» зоной мастерской - кофе-поинт - большой общий стол напротив кофе-поинта, если там места закончились
Кофе-point
техническая часть: - автомат с едой - кулер - микроволновка - кофеварка - электрический чайник
кофе-поинт содержит 5 сидячих мест


Коворкинг
в опросе многие студенты жаловались на нехватку компьютеров, поэтому я добавила дополнительный коворкинг на 8 мест.
Кураторская
в кураторской находится вместительный шкаф, мягкая мебель для отдыха и переговорный стол на 6 человек.
Компьютерный класс
комп-класс оснащен электронной доской и 12 рабочими местами с компьютерами.
Лекционная
лекционная на 24 человека
Аудитория для арт-практики / Макетная
- большая зона хранения (3 вместительных стеллажа + ящики в рабочих столах) - маркерная доска для заметок и набросков - 2 больших фирменных стола на 12 человек - «грязная» зона, в которой есть 2 покрасочных стола на 4 человека и 2 деревообрабатывающих станка - потолок сетчатый, что позволяет вешать на него макеты для сушки
Клаузура рабочего места
также вы можете ознакомиться с моим проектом предметного дизайна, в котором был создан макетный стол для арт-практики.