
Разработка дизайн-проекта велась на территории «Ворота Байкала»

«Ворота Байкала» это особая экономическая зона туристско-рекреационного типа на южном берегу озера Байкал.
Участок у подножья гор на южном берегу Байкала — сочетание прибрежной полосы, холмов и леса.

Концепция
Согласно верованиям бурят, в каждой местности обитают свои духи. Для самых сильных из них сооружают обоо — пирамиду из камней, возле которой совершают жертвоприношения. В качестве жертвы выступают сладости и молочные продукты, монеты, хлеб, завязанные полоски ткани, жгуты благовония. До сих пор по берегам Байкала и в горах региона можно увидеть возвышения из камней и привязанные к веткам ритуальные шелковые шарфы.

камень как обоо, ткани и бумага как ритуальные шелковые шарфы
скалистое и теплое убежище от звенящего холода снаружи
место, где духи словно охраняют вас
Текстурная доска
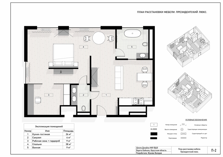
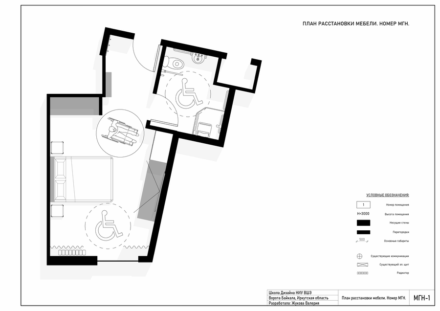
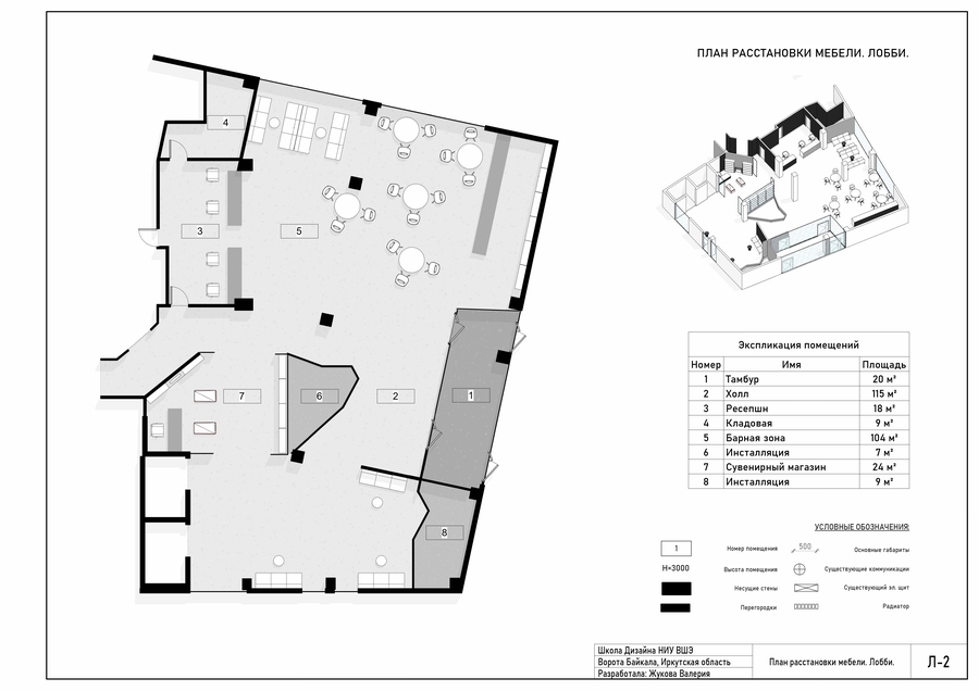
Планы расстановки мебели
Визуализации
Лобби. Зона ресепшн.
Ручная подача зоны инсталляции и зоны бара. Лобби.


Номер стандарт.


Президентский люкс.


Коридор