Original size 794x1101

Дизайн-проект офиса «Ozon Командировки»

PROTECT STATUS: not protected

Ozon Командировки — часть сервиса онлайн-платформы Ozon для организации деловых поездок и бизнес-путешествий.

post

Индивидуальный характер бренда (коммуникабельный, живой, открытый) отражается в открытых пространствах, своя философия (фирменный визуальный стиль) — в фирменных акцентах, а концепция 360° — адаптация фирменного стиля под любой сценарий коммуникации — в гибкой организации рабочих зон.

Офис как отправная точка деловой поездки

Проект раскрывает идею, где каждая функциональная зона офисного пространства отражает определенный этап командировки и поддерживает рабочие сценарии.

post

Местом ориентации и формирования цели является зона ресепшен, она интерпретируется как аналог зоны регистрации перед поездкой. Рабочая зона и кабинеты сотрудников — это маршрут между пунктами назначения — пространства непрерывного движения идей, процессов и задач. Зона отдыха и мини-кухня — метафоры пересадки и остановки в долгом пути, где можно переключить внимание и восстановить ресурс. Переговорная, кабинет руководителя и конференц-зал являются пунктами назначения деловой поездки — это пространства, где принимаются решения и проводится фокусная работа.

Палитра

big
Original size 1065x708

Основные, дополнительные и акцентные цвета бренда

Мудборд

Original size 2480x3508

Мудборд задает эмоциональное и визуальное направление проекта и служит связующим звеном между концепцией и интерьерными решениям

Материалборд

Original size 3508x3788

1 — дуб цвета «Сонома»; 2 — ковролин; 3 — матовая краска; 4 — штукатурка; 5 — тканевые панели; 6 — керамическая плитка; 7 — металл

Коллажи

Original size 2000x1994

Зона ресепшен

Original size 2000x2000

Зона отдыха

Original size 2000x2000

Мини-кухня

Original size 2000x2000

Рабочая зона

Original size 2000x2000

Переговорная

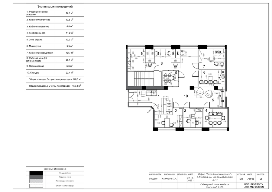
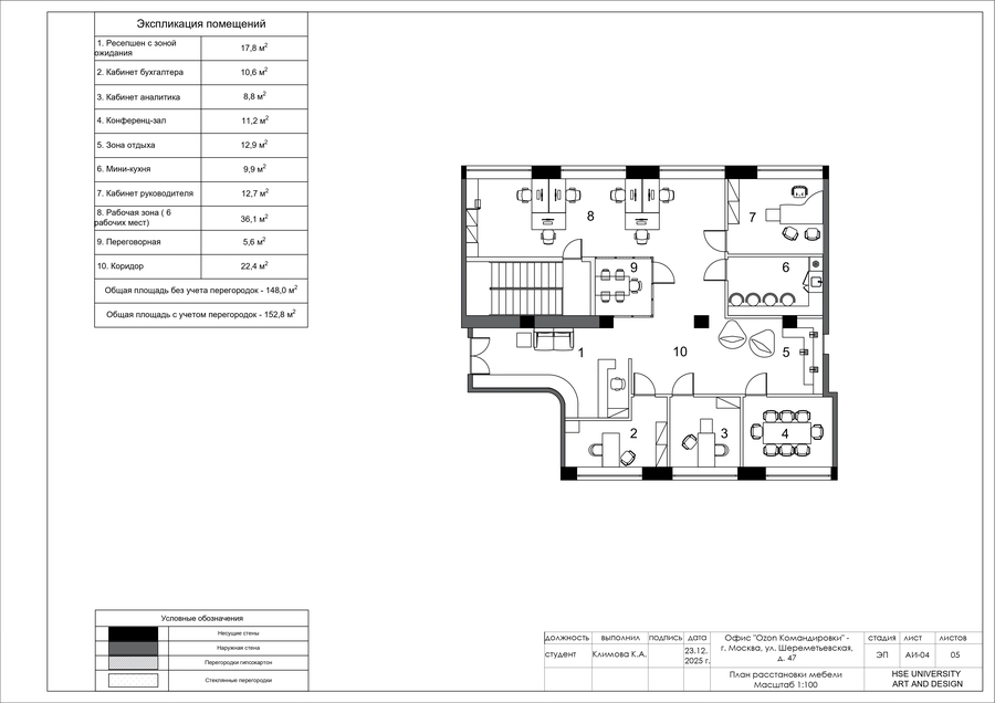
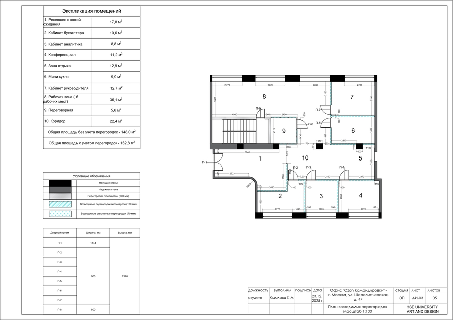
Техническая документация

0