


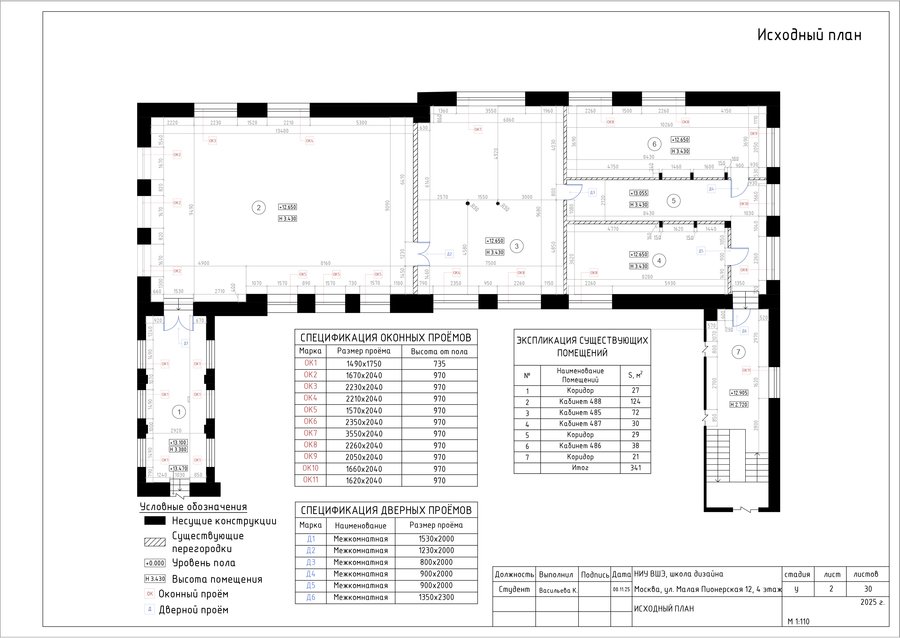
Дизайн-проект создан в рамках учебного задания. Исходное помещение расположено в одном из корпусов университета Высшей Школы Экономики по адресу Малая Пионерская, 12. Сам кластер располагается на четвертом этаже здания.
Возводимый план
Согласно аналитическим данным среди обучающихся были созданы нужные зоны для комфортного обучения студентов направления дизайна среды и интерьера.
Спецификация мебели и оборудования
Габаритная схема мебели
Представлено несколько схем
Финальный проект и спроектированная для него мебель