
В рамках проекта учебного кластера разработана концепция трансформируемого открытого пространства, основанная на принципах работы с плоскостью — вырезании и сгибе как методе формирования объёма.

Визуализация проекта
Для реализации данной концепции выполнен полный альбом рабочих чертежей, включающий демонтаж перегородок, организацию open space, а также детальную проработку перегородок, мебели и конструктивных узлов.
Проект учебного кластера основан на принципах открытой, гибкой и трансформируемой пространственной организации. В рамках концепции выполнен демонтаж существующих перегородок с формированием единого открытого пространства (open space), адаптируемого под различные форматы образовательной деятельности. Планировочные и конструктивные решения направлены на обеспечение вариативности использования среды, возможности быстрой трансформации и визуальной целостности пространства, отвечающей задачам современного образовательного процесса
План демонтажа, обмерный план
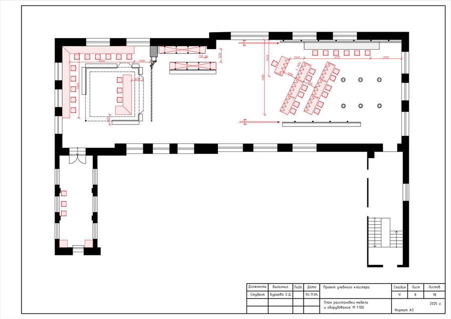
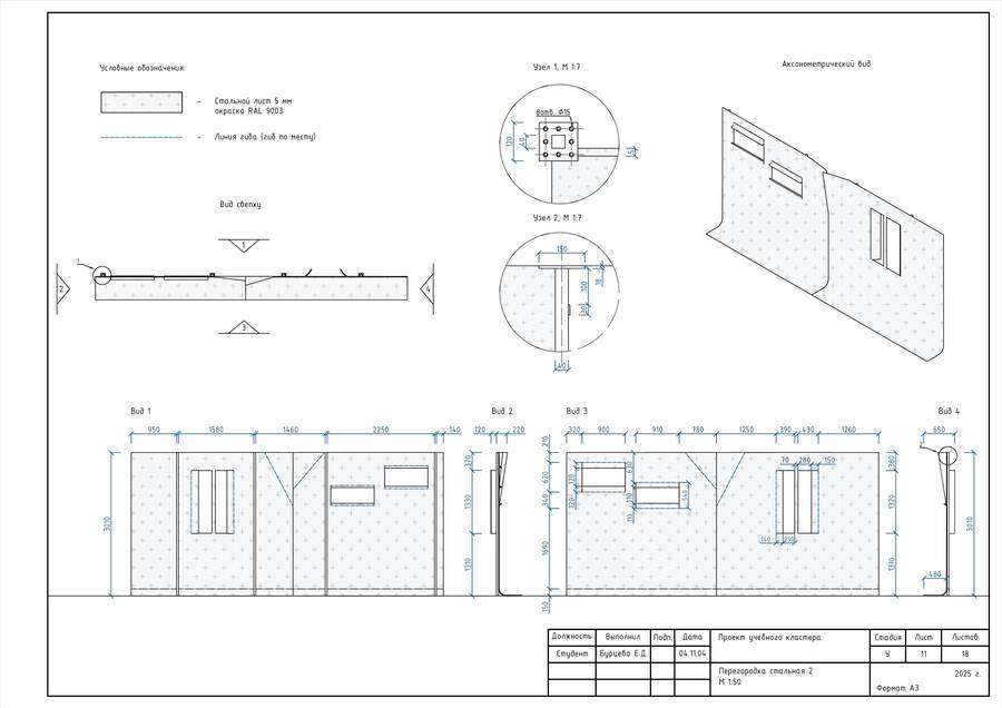
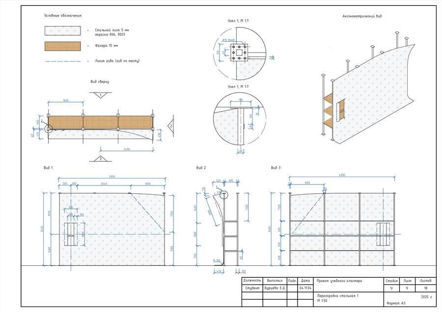
Перегородки в проекте имеют сложную геометрию и конструкцию, поэтому план монтажа выполнен с упрощённой логикой восприятия. Каждая перегородка вынесена в отдельную сноску и промаркирована, а её устройство и узлы подробно разобраны на последующих листах альбома
План монтажа, План расстановки мебели, Нумерация мебели
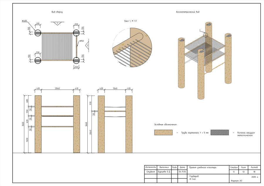
Для меня было принципиально разобрать все конструктивно сложные узлы и исключить неоднозначность при реализации. Поэтому каждая перегородка и каждый предмет мебели детально проработаны: показаны габариты, связи элементов, узлы и логика сборки, что позволяет воспринимать решения как инженерно завершённые, а не эскизные.
Габаритные схемы
Габаритные схемы