
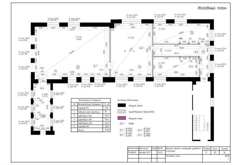
В данном модуле, мы разрабатывали чертежи для проекта учебного кластера.

Исходный план
Пространство создается для студентов и преподавателей факультета «дизайн среды и интерьера».
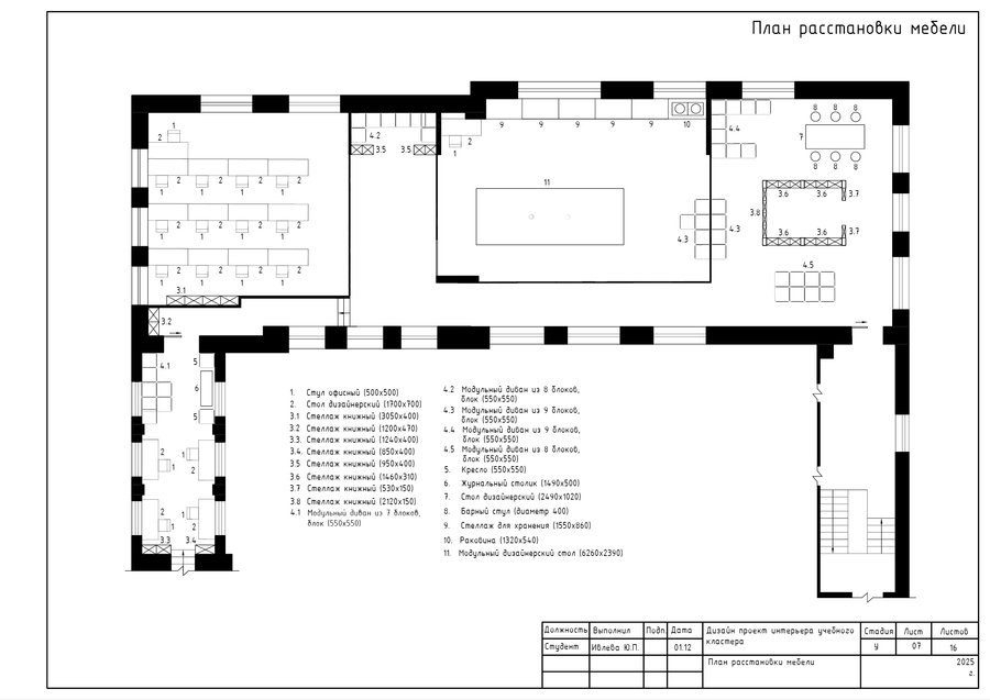
Пространство частично трансформируемое, гибкое, с нейтральной цветовой основой, но с содержанием цветных акцентов.
Учебный кластер оснащен эргономичной мебелью для повышения комфорта учеников и преподавателей.
Визуализации учебного кластера


Визуализации учебного кластера