
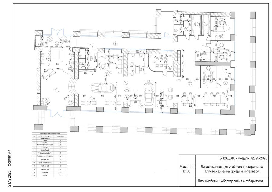
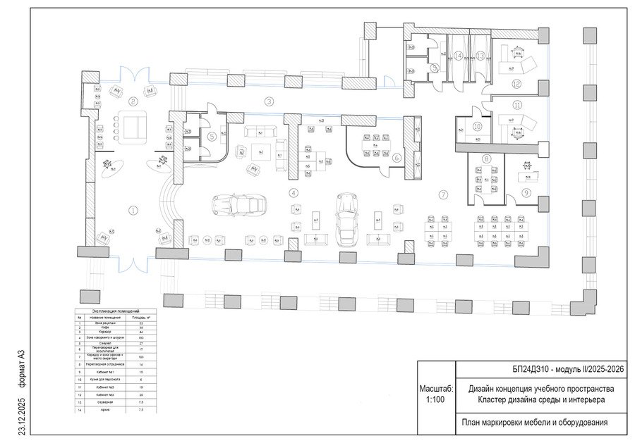
АЛЬБОМ ЧЕРТЕЖЕЙ
Данная работа содержит множество разновидностей планов к моему основному проекту. Это место, где объединены коворкинг, офисы, кабинеты, кафе и сменная выставка автомобилей. Главная цель — создать комфортную среду для работы и отдыха, где главным элементом интерьера являются интересные машины.


