
Альбом чертежей к проекту интерьера учебного кластера в HSE ART and Design School. Пространство задумано как живое, динамичное окружение, способное вдохновлять и поддерживать процесс обучения.




Исходный план | Демонтажный план


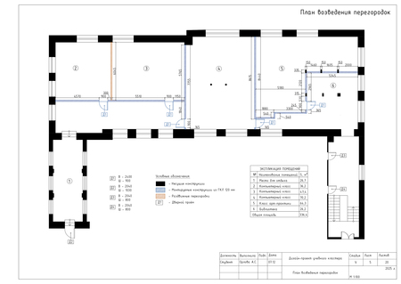
План возводимых перегородок | План функционального зонирования
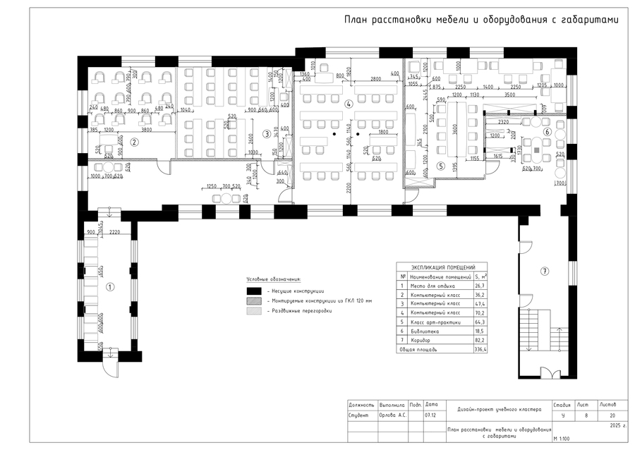
План расстановки мебели и оборудования | План расстановки мебели и оборудования с габаритами | План маркировки мебели и оборудования
Спецификация мебели и оборудования
Габаритные схемы
Габаритные схемы