Original size 2480x3500

Реконструкция площади ДК Кирова

134

Идейной основой проекта является лоскутное шитье. Это одно из древнейших видов рукоделия, основанное на сшивании кусков ­ткани по принципу ­мозаики. В проекте благоустройства площади техника пэчворка нашла отражение в смысловом, функциональном и ви­зуальном плане.

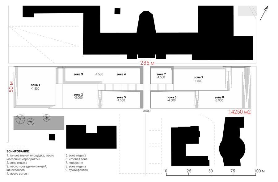
Дом культуры им. Кирова занимал важное место в жизни советских горожан. Его главной целью было обеспечение трудящихся досугом и отдыхом. Так ДК стал культурным и образовательным центром со своими театральными и музыкальными кружками, спортивными секциями, творческими мастерскими, кинотеатром. Большая часть общественной жизни района происходила на территории дома культуры: новогодние елки, дискотеки, митинги. Разнообразие видов деятельности в ДК определило функциональное зонирование площади перед ней.

Благодаря активной деятельности и большому сообществу ДК, это место ­закрепило за собой ассоциацию с теплотой и уютом особенно для тех, кто ­провел в доме культуры юность. Пэчворк, в этом плане, наиболее точно ­соответствует ощущению от памятного места. Тактильность, безопасность, комфорт, а также разнообразие и яркость впечатлений от пребывания в ДК объясняют выбор образа лоскута в качестве основы проекта.

big
Original size 5333x3565

Расположение территории. Большой проспект Васильевского острова, 83

big
Original size 5332x3501

План зонирования

Original size 5333x3750
Original size 5333x3750
Original size 2667x1875
Original size 2667x1875
Original size 2667x1875
Original size 2667x1875
Original size 2667x1875
Original size 2667x1875
Original size 2667x1875
Original size 2667x1875
Original size 2667x1875
Реконструкция площади ДК Кирова
134