В качестве места проектирования взято Синагога Рава Цирельсона (и Дом для престарелых) в г. Кишинев. Актуальность работы с данным пространством обусловлена его исторической ценностью, а само по себе здание имеет интересную конструктивную составляющую и визуальный потенциал, поэтому для меня важно сохранить его исторические руины и интегрировать их в современное здание.
Расположение/Ситуационный план
Здание Синагоги Рава Цирельсона и дом престарелых при ней были построены в 1910-х гг. Архитектурный комплекс, построенный в начале 20-го века, состоял из молельного дома и приюта для беднейших и престарелых. Есть свидетельства, что в проектировании участвовал Митрофан Элади — архитектор кишинёвской мэрии. В настоящее время находится в полуразрушенном состоянии.

фотофиксация

генеральный план на отметке +15.000
Территория находится на пересечении трех улиц. Дополняется новым строительством и облагораживается.
общий вид
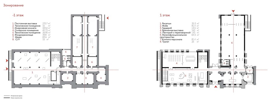
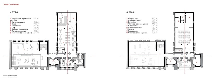
Поэтажные планы/фасады/разрезы культурного центра
Экстерьерное решение культурного центра
интерьерное решение культурного центра
Культурный центр включает в себе не только главное здание центра, но и территорию вокруг себя. Пространство выгодно располагается между тремя улицами, что позволяет делать его доступных с нескольких сторон. На территории культурного центра обустраиваются павильоны с разным функционалом.
Общественные пространства
экстерьерные визуализации
Внешний вид павильонов отличается от культурного центра. Сделано это чтобы поддержать историческую малую архитектуру города и отсылать к первобытности пространства.
интерьерные решения







































