

Проект таунхауса разработан для молодой пары, проживающей в американском штате Калифорния. Астрофизик и его жена эколог, будто союз космического пространства и оберегаемой им планеты Земля. Они мечтательны, интровертны и жизнелюбивы. Они пара высокого неба и крепкой земли.
Таунхаус располагается на побережье Тихого океана в океаническом климате, характеризующемся малыми перепадами температур, в среднем от +9 до +29.

Вентилируемый фасад должен предотвращать перегрев дома, способствуя дополнительной вентиляции. Навесныe панели созданы из сияющего материала для отражения солнечных лучей, в большом количестве отзеркаливающих от водной глади и песка.

Атмосфера пространства соткана из двух противоположных начал — первозданной силы каменистой планеты и космических далей, эфемерных и загадочных. Интерьер пронизывают детали, связывающие две стихии воедино. Например, стеклоблоки как основа для сооружения подиума на первом этаже должны передать человеку ощущение парения, эмоцию удивления, причастности к небесному и лёгкому.


В отличие от зон гостиной и столовой, располагающих к витанию в облаках и размышлениям на «высокие» темы, кухня оформлена более «приземлённо»: её композиционным и смысловым центром выступает имитирующий камень остров, окруженный металлическим кухонным гарнитуром.


Напольное и потолочное покрытие в интерьере выполнено из бетона, что неслучайно: с одной стороны, помещение должно ассоциироваться с пещерой, в которой могли бы укрыться от холода и хищников наши предки, что на подсознательном уровне вызывает ощущение комфорта и защищённости. С другой стороны, на фоне аскетичной отделки произведения искусства должны смотреться более акцентно и выигрышно.
Огненно-рыжее панно над кроватью в спальне символизирует перерождение: словно формирование новой звезды или взрыв сверхновой психика и тело человека переживают стадии обновления день за днём, ночь за ночью.


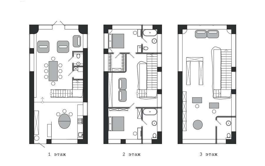
Третий этаж — зона свободного творчества и полёта фантазии — это место для работы и проведения исследований обоими супругами. Именно поэтому планировка пространства свободная: мебель оборудована колёсиками для облегчения передвижения по помещению, в котором, кроме стен уборной, отсутствуют перегородки.
Лестница выступает смысловым и композиционным ядром таунхауса: как общечеловеческий символ развития, она характеризует дом как микрокосм, где основной закон — эволюция мысли и материи.